Houses For Sale

The Estate Homes

4 Bedrooms
3 Bathrooms
1979 SQFT
2 Slots
LKR 48 Mn

Property overview

Developed by Groundworth Builders, The Estate is a premium residential housing project designed to offer more than just land ownership. It combines thoughtfully planned plots with architecturally designed luxury homes built for modern family living and long-term value.

Located in a rapidly developing residential zone, this exclusive project offers spacious two-storey homes with superior finishes and functional layouts ideal for growing families.

Project Highlights

  • Total Built Area: 1,979 sq.ft
  • Land Extent: 6 perches
  • Bedrooms: 4 spacious bedrooms
  • Bathrooms: 3 modern bathrooms
  • Parking: Space for 2 vehicle
  • Two-Storey Luxury Home
  • Balcony & Terrace Areas Included
Pricing & Payment Plan

Starting Price: LKR 48 Million
Reservation Fee: LKR 1,000,000

Pre-Construction Payment Plan
Reservation Fee – Immediate
30% Down Payment – Within 14 Days
70% Final Settlement – Within 30 Days

Post-Construction Payment Plan
Reservation Fee – Immediate
20% Down Payment (Including Reservation Fee) – Within 14 Days

Stage-Based Payments:
Completion of walls up to first-floor slab – 10% (Month 2)
Completion of walls up to second-floor slab – 10% (Month 3)
Completion of roof structure – 10% (Month 4)
Ground floor finishing, plumbing & fixtures – 10% (Month 6)
First floor finishing, tiling & aluminium work – 10% (Month 8)
Completion of bathrooms, electrical works, painting & landscaping – 10% (Month 10)
Full project completion – 20% (Month 12)

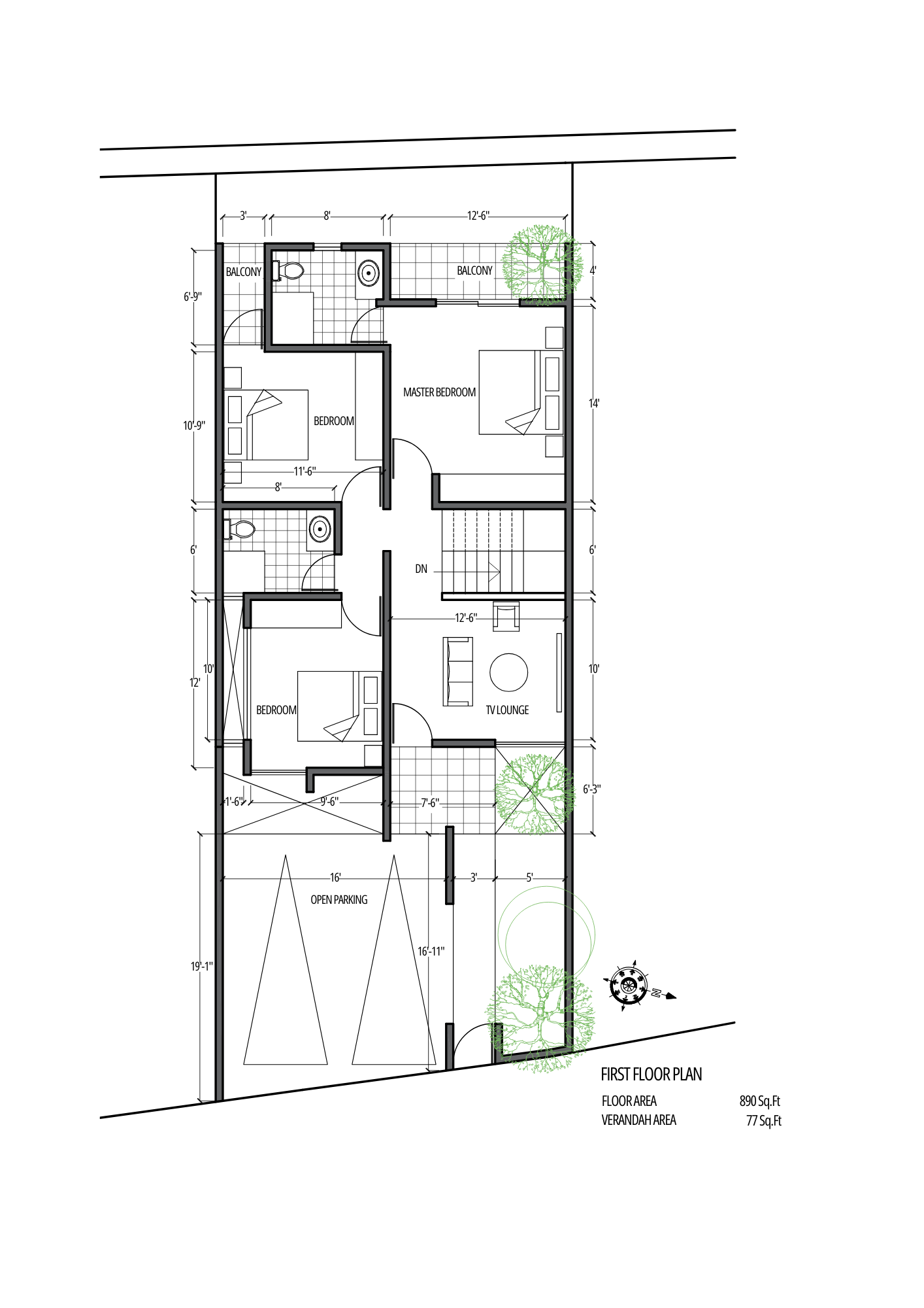
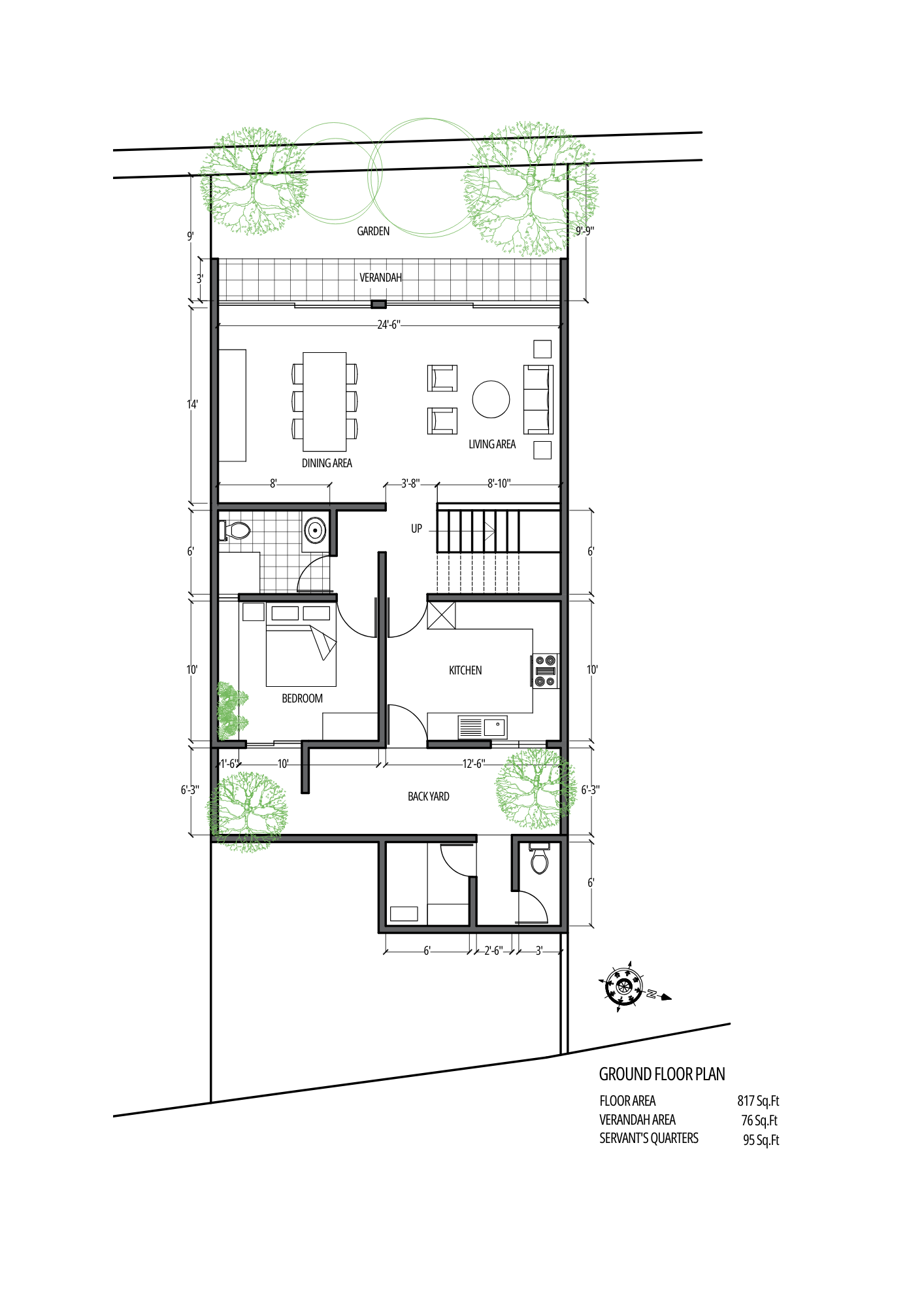
Floor Areas
Ground Floor
Floor Area: 817 sq.ft
Verandah Area: 76 sq.ft
Servant’s Quarters: 95 sq.ft

First Floor
Floor Area: 890 sq.ft
Verandah Area: 77 sq.ft

Specifications
Structure & Finishes
Red Brick Walls
Cement (SLS 107 / SLS 1247 Standard)
River Sand (SLS 375 Standard)
2×2 Floor Tiles (Macktiles or equivalent)
Bathroom Wall Tiles (1×2) & 2×2 Floor Tiles
Nippon / Causeway Paint

Bathroom Fittings
Commode
Wash Basin
Mixer Shower Kit
Branded Accessories

Electrical
Certified Wiring & Switches (ACL / Orange / Wireman)
Light Fittings (Downlights, Pendant Lamps, Mirror Lamps, Outdoor Lamps)
Ceiling Fans
Hot Water Geyser

Roofing
iPanel / Superflex Ceiling
Corrugated Roofing Sheets

Doors & Windows
Internal Doors – Mahogany / Mcply
External Doors – Mahogany
Bathroom Doors – PVC
Windows – Aluminium

Kitchen / Pantry
Aluminium Bottom & Wall-Mounted Cupboards
Tiled Pantry Tops

About the Property

  • Unfurnished
  • Large Living Room
  • Fully Tiled House
  • TV - Lobby Area
  • Balcony
  • Front & Rear Garden

Documentation

  • Clear Deeds
  • Approved Plans
  • COC Available

Conveniences

  • Gated Community - Enjoy unmatched security and privacy
  • Prime Location - Minutes from leading schools, hospitals, and shopping
  • Modern Design - Open-plan layout with premium fittings and finishes
  • Lush Landscaping - Surround yourself with greenery and open spaces

Similar Properties

Houses For Sale

The Infinity Homes

3
2
1435 SQFT
LKR 37.5 Mn

Houses For Sale

Lake Road Battaramulla

4
3
3307 SQFT
LKR 98.5Mn

Houses For Sale

Vijaya Mawatha, Athurugiriya

4
3
4527 SQFT
LKR 87.5 Mn